Rif: duplex/millep285
RODANO
MILANO
**Appartamento su Due Piani in Vendita a Millepini**
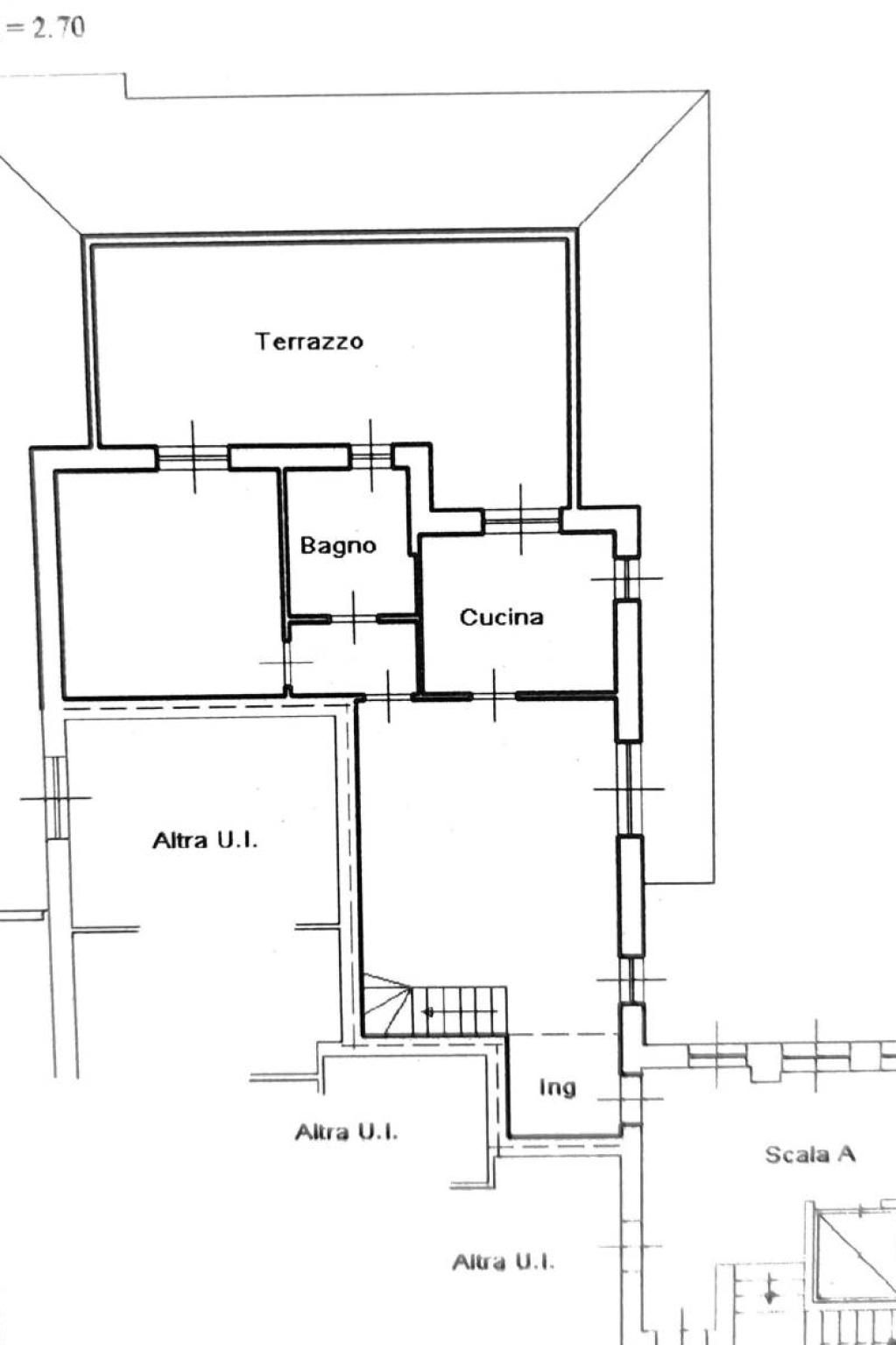
Scopri questo affascinante appartamento su due piani, situato in un rinomato contesto residenziale e verdeggiante a Rodano, frazione Millepini. Costruito nei primi anni 2000 e in ottime condizioni generali, questo immobile offre al primo piano, raggiungibile anche tramite ascensore, un ampio soggiorno luminoso e confortevole, perfetto per momenti di relax. La cucina abitabile è ideale per chi ama cucinare e intrattenere, mentre la spaziosa camera da letto matrimoniale garantisce un riposo sereno.
Il bagno padronale, finestrato e dotato di box doccia, aggiunge un tocco di eleganza. Non dimenticare il grande terrazzo di circa 50 mq, accessibile dalla camera e dalla cucina, dove poter trascorrere piacevoli serate all'aperto. Una scala interna conduce al secondo piano sottotetto, dove si trova un ulteriore ambiente unico, perfetto per uno studio o una zona relax, insieme ad un secondo bagno finestrato con vasca ed un ulteriore balcone vivibile.
L'appartamento è dotato di pavimentazione in parquet e porte interne in legno massello, con travature a vista al piano superiore che conferiscono carattere all'immobile. Gli impianti di riscaldamento a pavimento e il sistema di climatizzazione a pompa di calore assicurano comfort in ogni stagione. La sicurezza è garantita da impianto di allarme, inferriate e zanzariere, mentre la tenda elettrica nel terrazzo offre praticità.
La posizione strategica permette di raggiungere il centro di Milano in soli 15 minuti, con una fermata dell'autobus nelle vicinanze per la stazione ferroviaria. Nelle immediate vicinanze ci sono scuole elementari e negozi di prima necessità. Completano l'offerta un box singolo e un vano cantina al piano interrato. L'appartamento è libero al rogito e pronto per essere abitato. Non perdere l'occasione di visitarlo!
Per info ed appuntamenti tel. 0292147853 oppure cell. 3483332893 Matteo.
Scopri questo affascinante appartamento su due piani, situato in un rinomato contesto residenziale e verdeggiante a Rodano, frazione Millepini. Costruito nei primi anni 2000 e in ottime condizioni generali, questo immobile offre al primo piano, raggiungibile anche tramite ascensore, un ampio soggiorno luminoso e confortevole, perfetto per momenti di relax. La cucina abitabile è ideale per chi ama cucinare e intrattenere, mentre la spaziosa camera da letto matrimoniale garantisce un riposo sereno.
Il bagno padronale, finestrato e dotato di box doccia, aggiunge un tocco di eleganza. Non dimenticare il grande terrazzo di circa 50 mq, accessibile dalla camera e dalla cucina, dove poter trascorrere piacevoli serate all'aperto. Una scala interna conduce al secondo piano sottotetto, dove si trova un ulteriore ambiente unico, perfetto per uno studio o una zona relax, insieme ad un secondo bagno finestrato con vasca ed un ulteriore balcone vivibile.
L'appartamento è dotato di pavimentazione in parquet e porte interne in legno massello, con travature a vista al piano superiore che conferiscono carattere all'immobile. Gli impianti di riscaldamento a pavimento e il sistema di climatizzazione a pompa di calore assicurano comfort in ogni stagione. La sicurezza è garantita da impianto di allarme, inferriate e zanzariere, mentre la tenda elettrica nel terrazzo offre praticità.
La posizione strategica permette di raggiungere il centro di Milano in soli 15 minuti, con una fermata dell'autobus nelle vicinanze per la stazione ferroviaria. Nelle immediate vicinanze ci sono scuole elementari e negozi di prima necessità. Completano l'offerta un box singolo e un vano cantina al piano interrato. L'appartamento è libero al rogito e pronto per essere abitato. Non perdere l'occasione di visitarlo!
Per info ed appuntamenti tel. 0292147853 oppure cell. 3483332893 Matteo.
Consistenze
| Descrizione | Superficie | Sup. comm. |
|---|---|---|
| Principali | ||
| Immobile - 1° piano | 96 Mq | 96 Mqc |
| Accessorie | ||
| Box/Garage - piano interrato | 15 Mq | 8 Mqc |
| Totale | 104 Mqc | |

